Vom Entwurf bis zur Umsetzung

Entwurf & Planung – kreative Ideen fachgerecht umsetzen

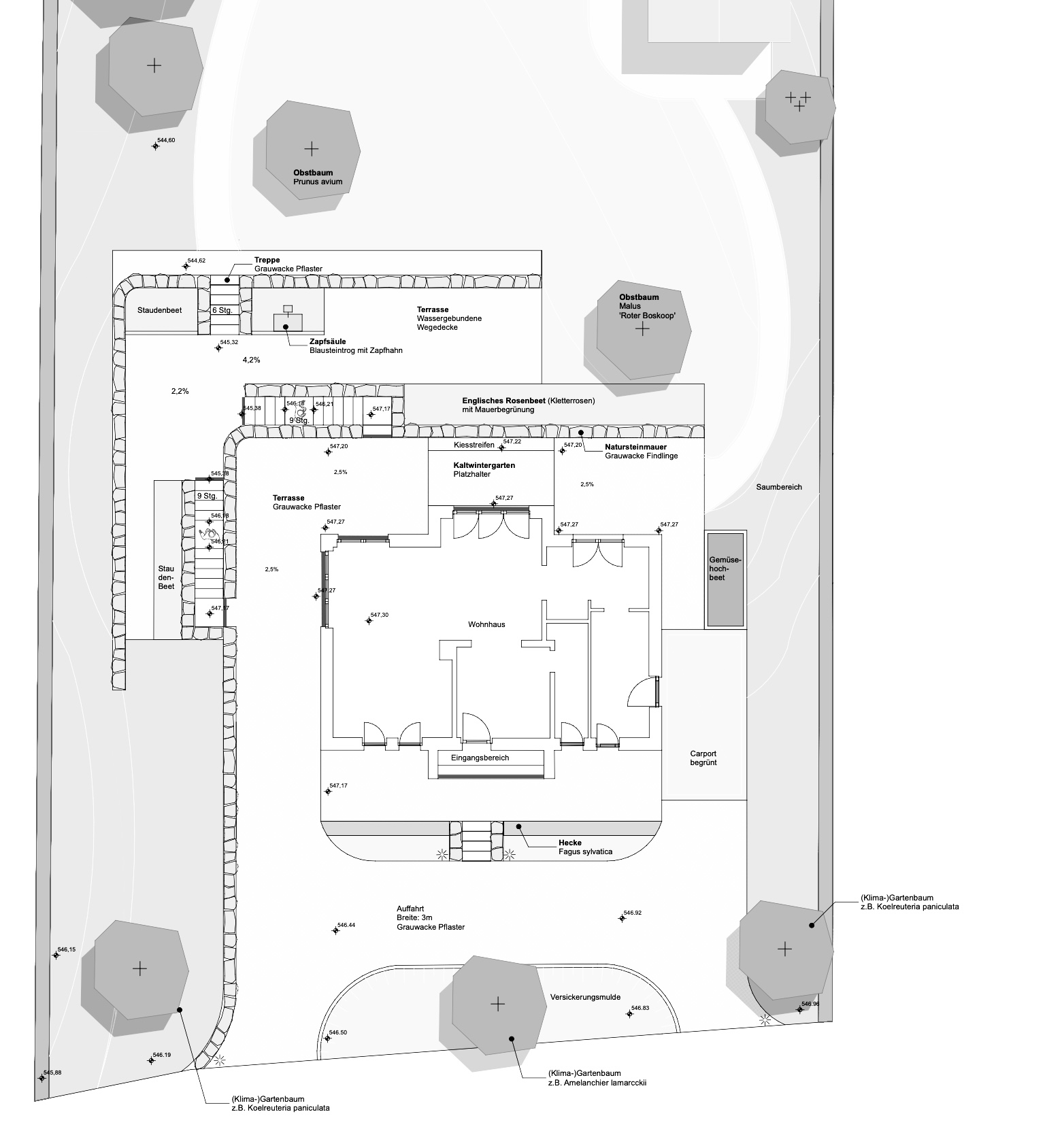
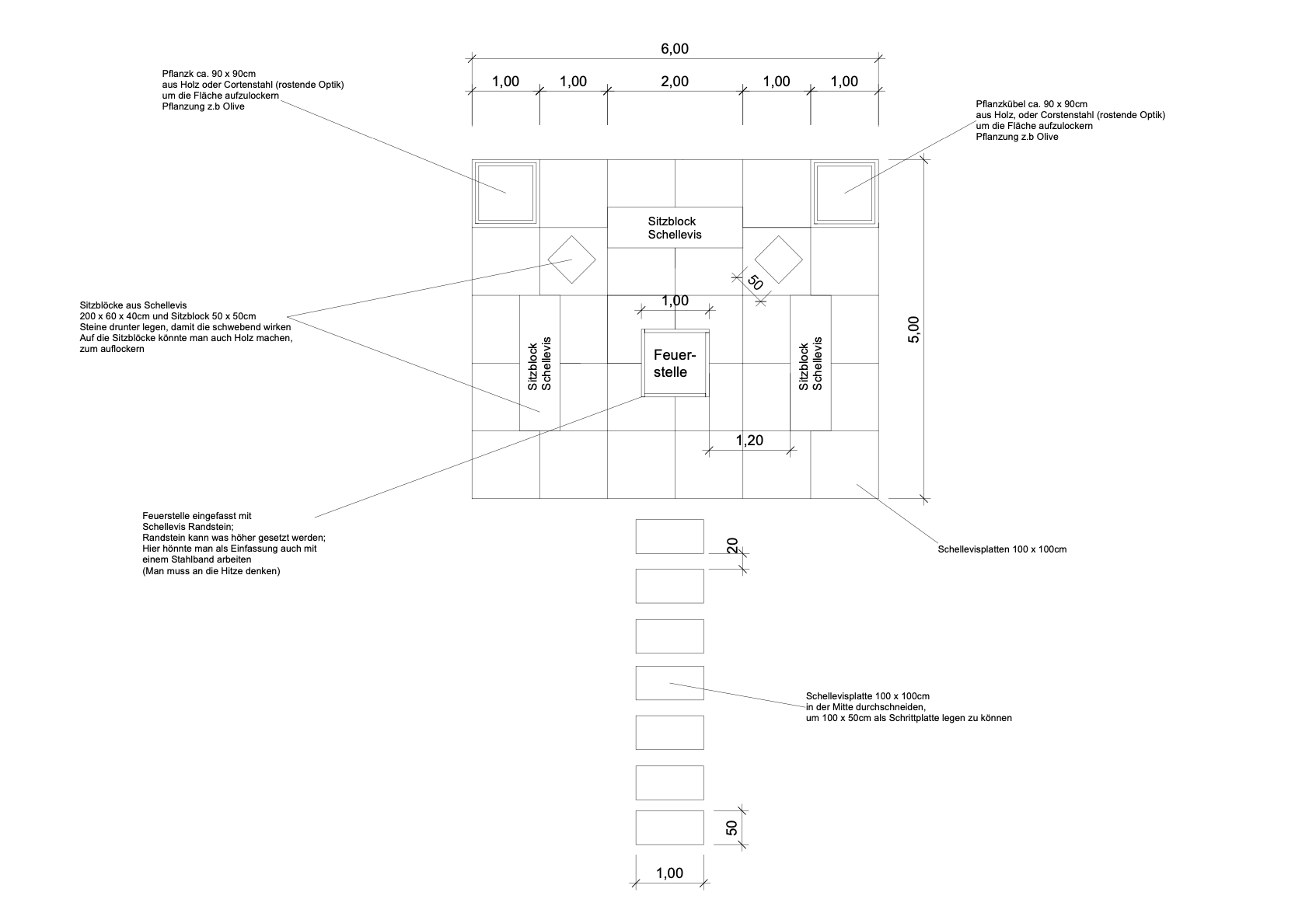
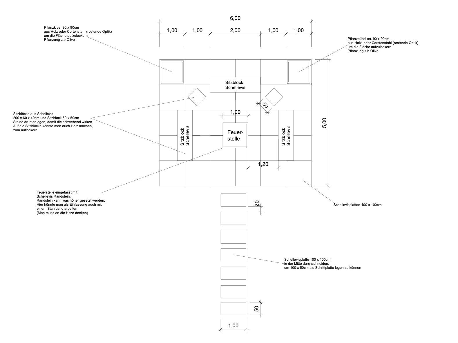
Ein gelungener Garten beginnt mit einem durchdachten Konzept. Wir entwickeln für Sie individuelle Entwürfe, die genau zu Ihren Wünschen, Ihrem Grundstück und Ihrem Budget passen.

Von der ersten Idee über detaillierte Planungsunterlagen bis hin zur Umsetzung erhalten Sie bei uns alles aus einer Hand.

Unsere fachgerechte Planung bildet die Grundlage dafür, dass Ihr Garten später genauso aussieht, wie Sie es sich vorstellen – ästhetisch, funktional und nachhaltig.
Ob Neuanlage, Umgestaltung oder Erweiterung: Wir begleiten Sie kompetent von der Idee bis zur Umsetzung.

Planungsleistungen werden durch unser internes Gutachter- und Planungsbüro durchgeführt.